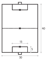
5:5
Den anbefalede banestørrelse for 5:5 er 40x30 meter.
Straffesparksfeltet og målfeltet er identiske og måler 13x5 meter, og straffesparkspletten skal markeres med et kryds 5 meter fra baglinjen. Midterlinjen skal markeres - enten med en midterlinje eller et kryds i banens centrum. Målet er 3 meter bredt og 1,5 meter højt.
Alle mål er anbefalede mål i børne- og ungdomsfodbold.
Hent en printvenlig version af grafikken for 5:5-banen her.
